For Sale

Stanton Lane, Kington St. Michael, Chippenham

Bed icon  3    Bath icon  1    receptions icon  3

£595,000

Save Saved
Contact Us

For further details on this property please call us

01249 444449


Book a Viewing

Features

  • NO ONWARD CHAIN!
  • Generous Plot Approaching 1/4 of an Acre
  • Edge of Village Adjoining Countryside
  • Far Reaching Views to Side
  • Three Bedroom Detached Bungalow
  • Two Reception Rooms, Double Glazed Conservatory
  • Kitchen, Separate Utility Room
  • Double Glazing, Oil Fired Central Heating
  • Mature Well Stocked Gardens to Front & Rear
  • Detached Garage & Driveway Parking

Full Details

Situation

The village of Kington St Michael lies north of the market town of Chippenham, providing excellent access to the M4. it is a small, thriving village with a community feel. There are a number of amenities to include a village primary school and nearby Stanton St Quintin primary school, village hall, The Jolly Huntsman B&B, Social Club, Kington Cafe and St Michael & All Angels parish church. Further details about the village can be found on the village website - https://www.kingtonstmichael.com

The nearby market town of Chippenham is less than 10 minutes drive away and has further facilities including mainline railway station, a bus service to closest secondary schools Hardenhuish School and Sheldon School with a bus stop within the village. Chippenham offers independent and chain retailers, cinema, leisure centre as well as out of town shopping and a range of other amenities. The picturesque town of Malmesbury is approximately 15 minutes drive away and offers a bustling High Street with a mix of independent and chain retailers, highly regarded schooling and a leisure centre.

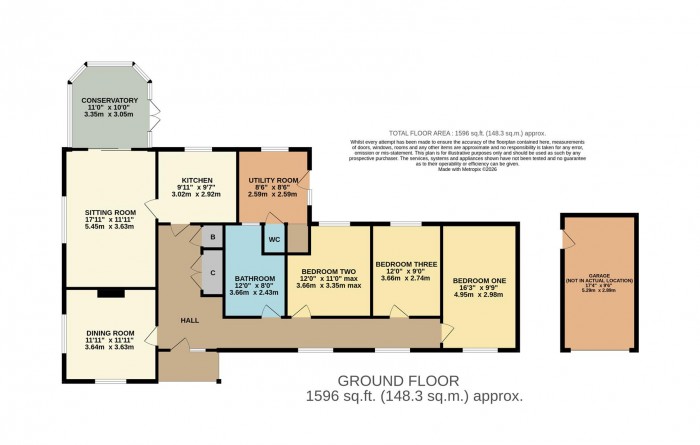
Accommodation Comprising:

Obscure double glazed entrance door to:

Reception Hall

Two double glazed windows to front. Two radiators. Double cupboard. Cupboard housing oil fired boiler for central heating and hot water. Doors to:

Sitting Room

Double glazed window to side enjoying far reaching views over adjoining countryside. Radiator. Fireplace electric fireplace with stone surround and hearth. Double glazed sliding patio doors to:

Conservatory

UPVC double glazed on brick built base with French doors to side. Tiled floor.

Dining Room

Double glazed window to front and side. Radiator. Feature electric fireplace with tiled surround and hearth.

Kitchen

Double glazed window to rear. Range of drawer and cupboard base units and matching wall mounted cupboards. Rolled edge work surfaces with tiled splashbacks and inset single bowl single drainer stainless steel sink unit with chrome mixer tap. Built-in stainless steel electric oven and hob with stainless steel extractor over. Tiled floor. Door to:

Utility Room

Obscure double glazed door to side. Double glazed window to side and rear. Tiled floor. Belfast sink unit with tiled splashback. Space and plumbing for washing machine. Space and plumbing for dishwasher. Storage recess. Door to:

WC

Tiled to half height. Close coupled WC. Tiled floor.

Bedroom One

Double glazed window to front. Radiator. Fitted wardrobes.

Bedroom Two

Double glazed window to rear. Radiator.

Bedroom Three

Double glazed window to rear. Radiator.

Bathroom

Obscure double glazed window to rear. Ladder radiator. Panelled bath. Separate corner shower cubicle. Pedestal wash basin. Close coupled WC. Tiling to half height. Tiled floor. Spotlights. Extractor.

Outside

Front Garden

Laid to lawn and planted with mature shrubs and trees. Gravelled driveway offering off road parking for several vehicles leading to garage. Path to front door.

Rear Garden

Paved seating area leading to lawn. Planted with mature shrubs. Outside water tap. Enclosed by timber fencing and hedgerow.

Garage

Up and over door. Power and light. Door to side.

Directions

Take the A429 from Chippenham along the dual carriageway towards the M4 J.17. After c.1 mile turn left at the crossroad traffic lights signposted Kington St Michael. Proceed through the village and Stanton Lane will be found on the right hand side, after the turning into Kyneton Way. The property is then the last one on the right hand side as you leave the village.

Floorplan for Stanton Lane, Kington St. Michael, Chippenham
EPC Graph for Stanton Lane, Kington St. Michael, Chippenham

Book a Viewing

About You


@

About Us

Goodman Warren Beck Estate Agents are an independent firm of estate agents based in the North Wiltshire town of Chippenham.

Read More
About Us

Sales

Selling your most valuable asset can seem really daunting and you need to be sure that the agent you choose will do their best to achieve you the best possible sale price for your property.

Read More
Sales

The Guild

We are Proud Members of The Guild of Property Professionals, the UK’s Premium estate agency network

Read More
Lettings

Register

Register for Property Updates

Register Here
Register

Valuation

How much is your property worth? Stop wondering and find out, with a property valuation from Goodman Warren Beck.

Book Here
Valuation

News

All the latest news from Goodman Warren Beck.

Read More
News

Meet the Team

Meet the Team that keep Goodman Warren Beck moving.

Read More
Meet the Team

Contact Us

Contact us here and we can assist you further.

Contact Us
Contact Us
GUILD TPO_TSi