For Sale

Silver Street, Gastard, Corsham

Bed icon  4    Bath icon  3    receptions icon  2

£800,000

Save Saved
Contact Us

For further details on this property please call us

01249 444449


Book a Viewing

Features

  • Village Location
  • Brand New Development of Six New Homes
  • Spacious Plot
  • Open Plan Living Space
  • High Speficiation
  • Under Floor Heating to the Ground Floor
  • Fitted Neff Appliances

Full Details

Situation

The Martin’s Yard development (SN13 9PG) is located off of Silver Street, leading into Gastard from the Corsham direction.

The development is located close to the centre of Gastard village which boasts amenities including a vehicle repair and servicing workshop, a locally-renowned pub, and a playing field. The neighbouring historic market town of Corsham is located a short four minute drive north. Corsham is located at the southwestern edge of The Cotswolds, offering a range of amenities including multiple primary schools, a secondary school, local shops, dentists, a doctors’ surgery, and historic landmarks including Corsham Court.

The Martin’s Yard development is in a great location, with the city of Bath located a 25 minute drive away, and the picturesque town of Bradford On Avon just eight miles south-west of the development. In terms of transport links, the A4 linking Bristol to Central London is located just 2.2 miles north of the development. The nearest train station is Chippenham, which is located 5.3 miles away and lies along the London Paddington to Bristol Temple Meads line. There are multiple bus stops in the village of Gastard, which travel to Melksham, Corsham and Trowbridge.

Specification

Each of the properties at the Martin’s Yard development benefit from:

-ASHP heating
-Under floor heating to ground floor
-Fully fitted kitchen
-Fitted Neff appliances to include: oven, hob, extractor, dishwasher and fridge freezer
-Downlights to primary rooms
-Duravit sanitary ware
-Duravit & Vado brassware
-Laminate flooring to the Kitchen/Dining/Family Room, Hall and Cloakroom
-Tiled bathroom and en-suite with electric underfloor heating to floors
-Varying allocated parking spaces and garage facilities, depending upon the property type.

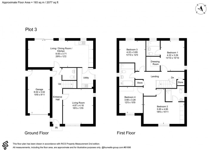
Ground Floor

Living/Dining/Kitchen 29'6" (9.00m) x 12'2" (3.71m)
Living room 16'0" (4.87m) x 13'9" (4.18m)
Cloakroom
Utility Room
Garage 19'9" (6.02m) x 9'11" (3.02m)

First Floor

Bedroom One 13'10" (4.22m) x 10'10" (3.29m)
Ensuite
Dressing Room
Bedroom Two 18'6" (5.65m) x 15'11" (4.85m)
Ensuite
Bedroom Three 13'10" (4.22m) x 12'0" (3.65m)
Bedroom Four 12'0" (3.66m) x 10'9" (3.28m)
Bathroom

Agents Note

** Specification and materials are subject to change. Computer generated images (CGI), house layouts and site plans are produced in good faith and are intended to give potential customers a flavour of each particular house type. Plot sizes and landscaping may vary. Marketing material is provided for general information purposes only.

Floorplan for Silver Street, Gastard, Corsham

Book a Viewing

About You


@

About Us

Goodman Warren Beck Estate Agents are an independent firm of estate agents based in the North Wiltshire town of Chippenham.

Read More
About Us

Sales

Selling your most valuable asset can seem really daunting and you need to be sure that the agent you choose will do their best to achieve you the best possible sale price for your property.

Read More
Sales

The Guild

We are Proud Members of The Guild of Property Professionals, the UK’s Premium estate agency network

Read More
Lettings

Register

Register for Property Updates

Register Here
Register

Valuation

How much is your property worth? Stop wondering and find out, with a property valuation from Goodman Warren Beck.

Book Here
Valuation

News

All the latest news from Goodman Warren Beck.

Read More
News

Meet the Team

Meet the Team that keep Goodman Warren Beck moving.

Read More
Meet the Team

Contact Us

Contact us here and we can assist you further.

Contact Us
Contact Us
GUILD TPO_TSi